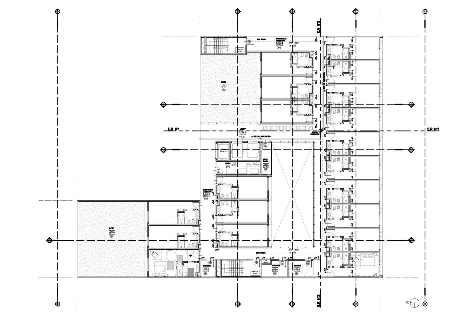
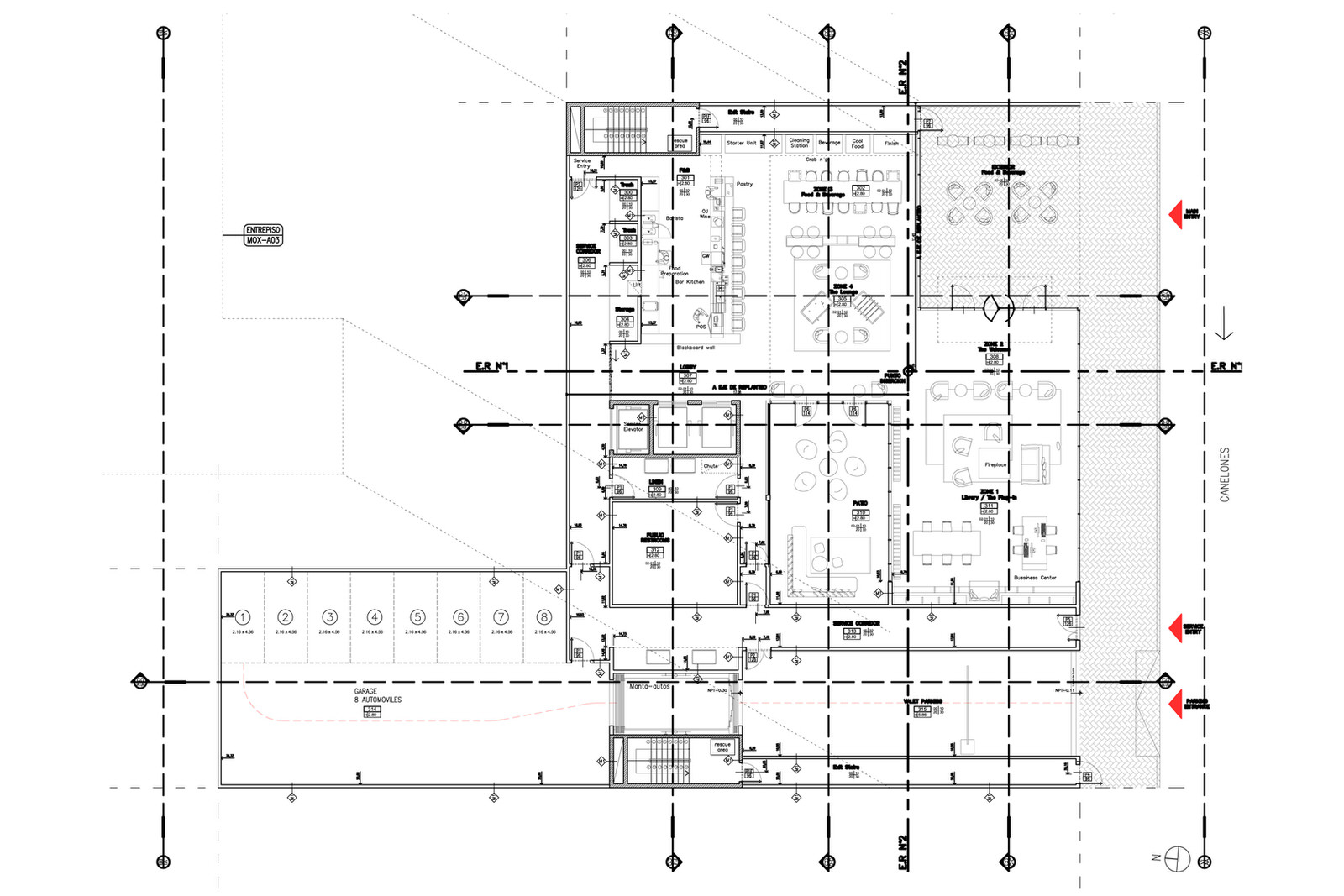
LOCACIÓN:
Canelones y Wilson Ferreira Aldunate
Montevideo
Uruguay
DESTINO:
Hotel
m2: 9061
ARQUITECTO:
Nazareno Navone
EQUIPO DE PROYECTO:
Arq. Pablo Castaño
Arq. Julia Busan
Arq. Constanza Marzano
IMÁGENES:
Estudio MOT
AÑO:
2017
ESTADO:
Lanzamiento 2018



