LOCACIÓN:
Hipólito Yrigoyen 8389
Lomas de Zamora
Buenos Aires
Argentina
DESTINO:
Oficinas.
78 Unidades.
m2: 6892
ARQUITECTO:
Nazareno Navone
EQUIPO DE PROYECTO:
Arq. Pablo Castaño
Arq. Julia Busan
Arq. Constanza Marzano
IMÁGENES:
Estudio MOT
AÑO:
2017
ESTADO:
Construcción
Ubicado en el centro de Lomas de Zamora, HY8389 expresa el potencial de un lote pequeño en esquina creando un volumen escalonado de 6892m2 que aloja 78 unidades funcionales destinadas al uso comercial.
Más alto que sus vecinos, HY8389 funciona como una estructura de lote en esquina con una fuerte exposición y orientación a la luz para brindar calidez a los espacios interiores y fortalecer sus vistas directas hacia su entorno inmediato de frondosa vegetación.
La estricta limitación de altura fuerza el volumen a depender de su potencial de voladizo para maximizar la superficie total del edificio, dando como resultado terrazas privadas de uso recreativo. Dicho proceso de escalonamiento y adición permite generar un zócalo comercial en planta baja que se vincula de manera permeable al espacio público.






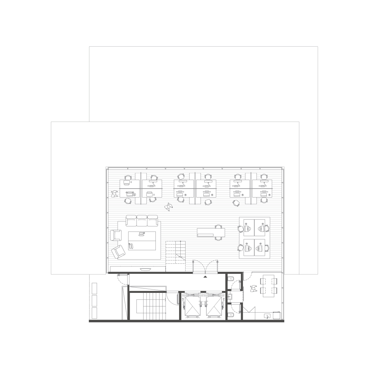
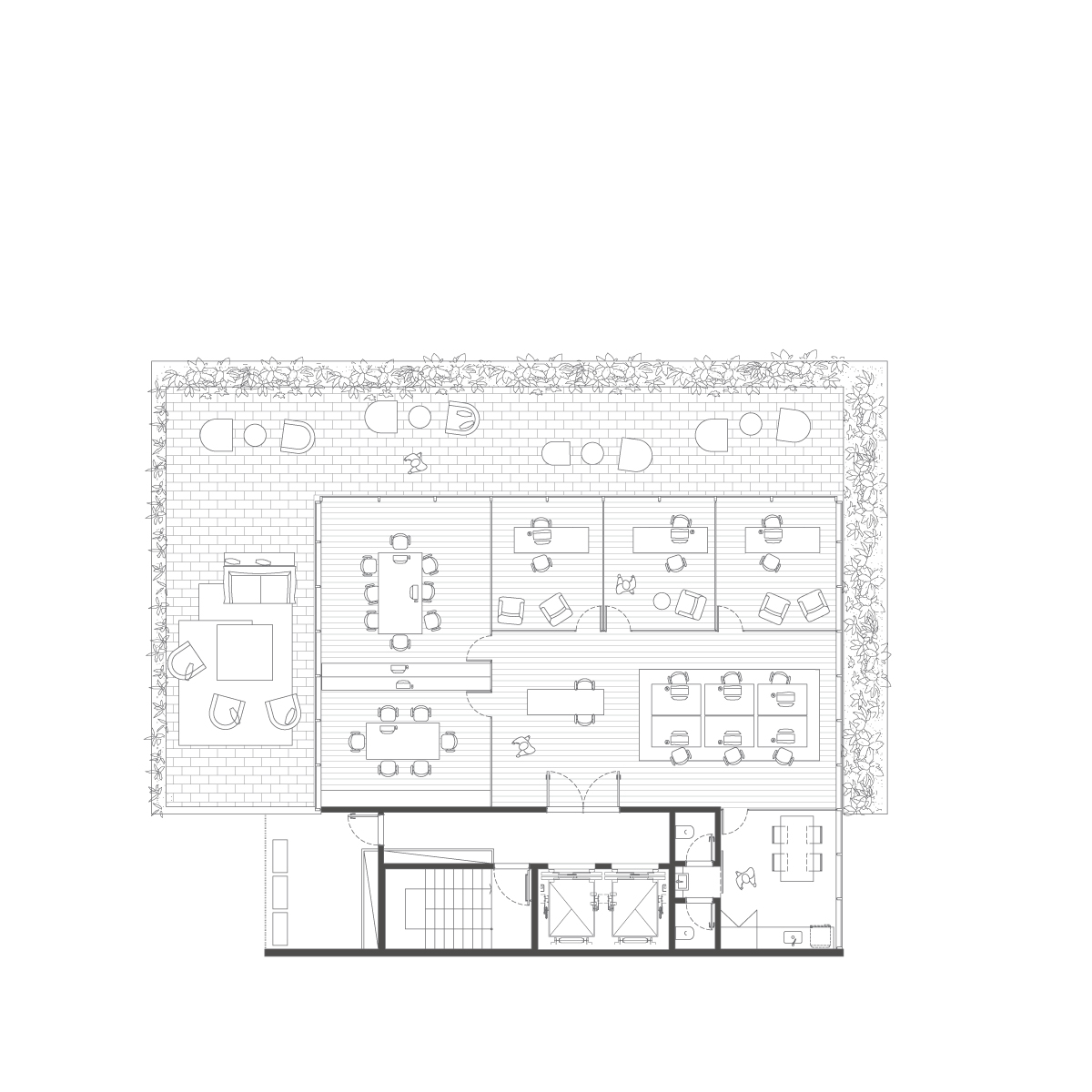
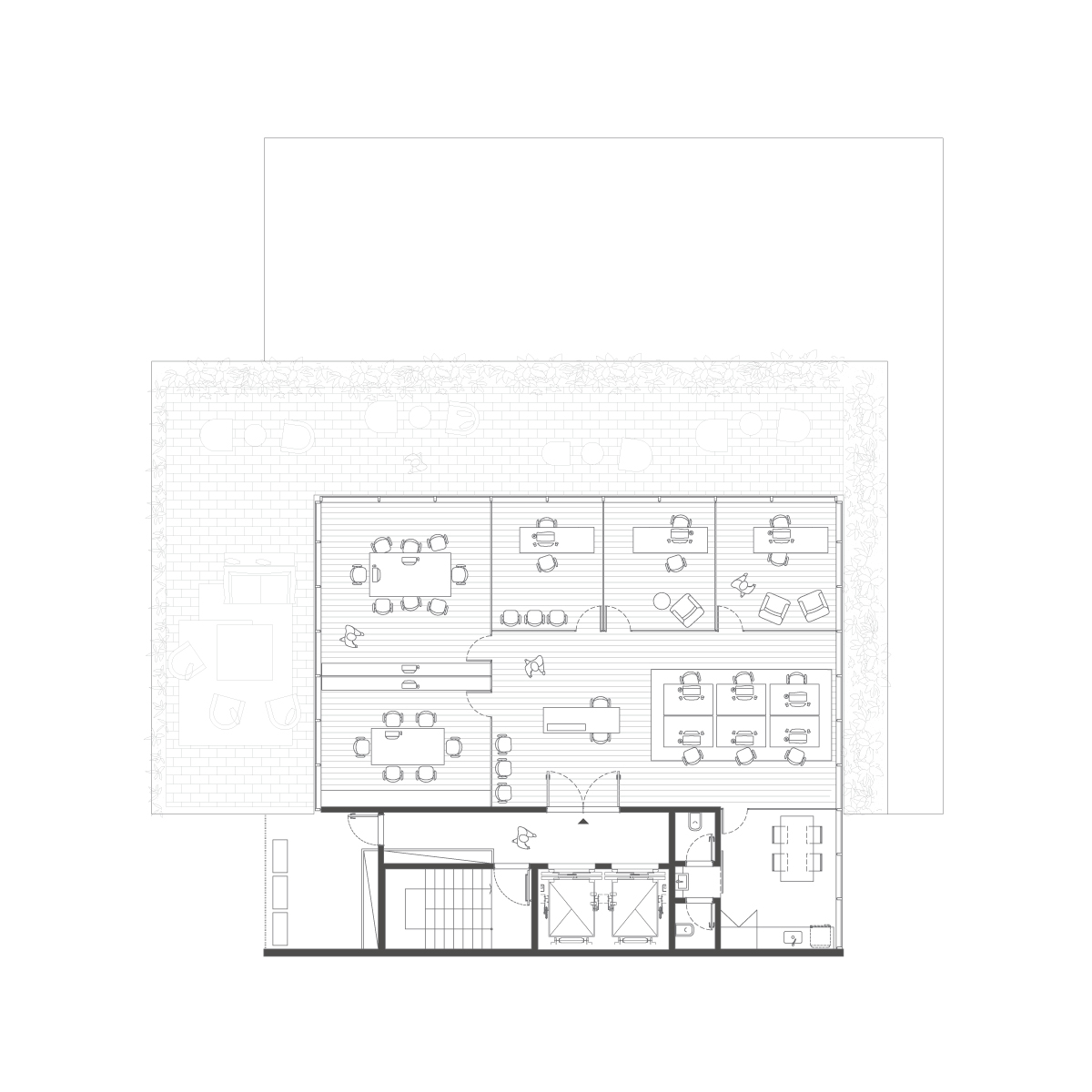
PLANTA BAJA
PLANTA TIPO 1°
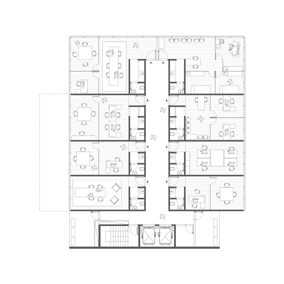
PLANTA TIPO 2° A 5°
PLANTA TIPO 6°
PLANTA TIPO 7° A 11°
PLANTA TIPO 12°
PLANTA TIPO 13° A 14°
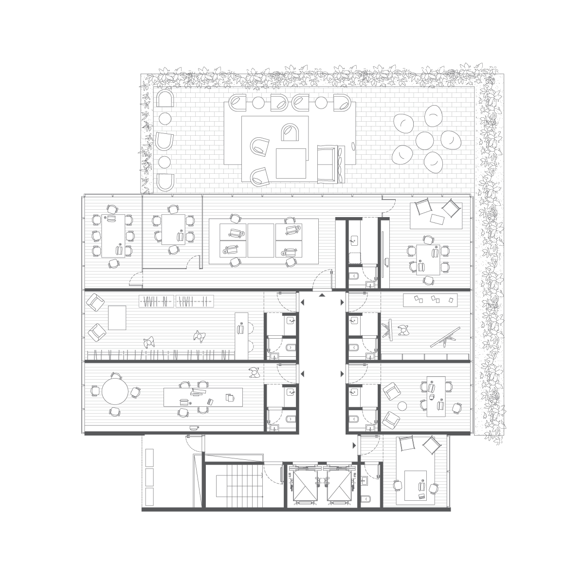
PLANTA TIPO 15°
PLANTA TIPO 16°
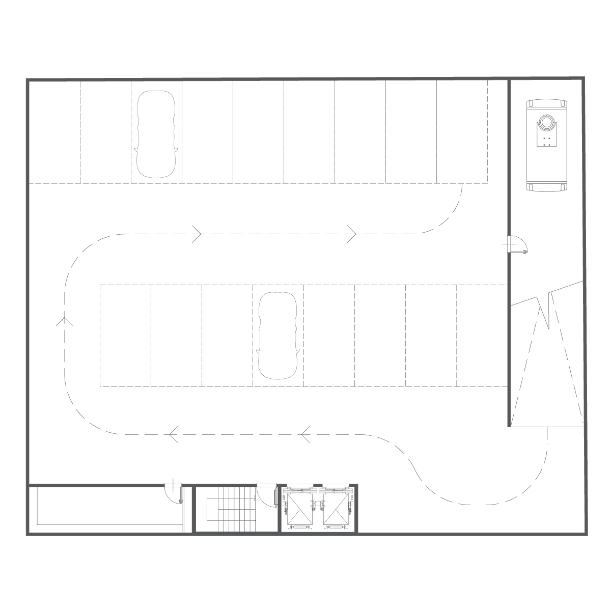
PLANTA TIPO SS1°
PLANTA TIPO SS2°